The design is for a contemporary building, modern square glass and cladding on the exterior with large spaces on the interior. Despite using modern design, materials and build practises we have steered clear of the huff-haus principles and technologies.
Huff-haus in creating a highly efficient building is fine in principle but wouldn’t work for us. Apart from adding significantly to the build cost we do not want to pursue any Germanic standards and certification and practically having an airtight building simply wouldn’t work for us .. we like wandering in/out and leaving doors/windows open.
Ironically, or because I’ve been a technologist and engineer all my life we’re going to make things simple, i.e. things will work. We will press a switch and a light will go on, if the internet stops the house will still function. -However-, in the dark and rainy times I am playing with smart controls, and the house will be provisioned so I can add techie bits on the quiet.
Finally we would like a very eco house, but the arguments for using eco-stuff is very weak. As you research into the eco arguments the benefits typically fall away, the proponents talk about the good stuff, but ignore the bad bits .. mostly they don’t cost the cost, either ££ or eco of the infrastructure required. The house will therefore run on mains gas, electricity, water and waste. -However- we’re burying some recycled IBC tanks to water the garden, and installing the ducting and pipework to have solar water and PV. Read the eco section for (my view of) the arguments.
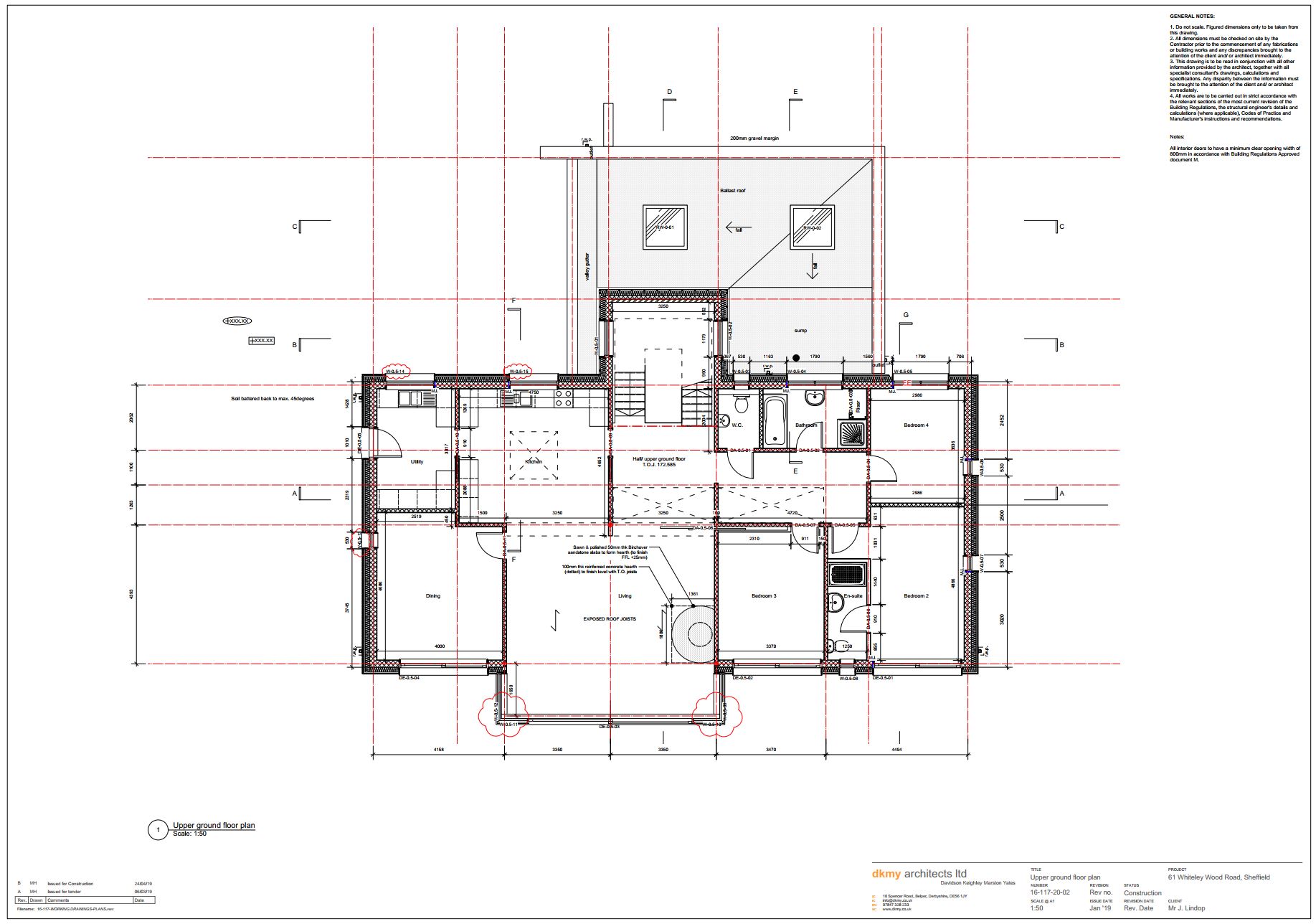
Layout
The prior bungalow was tired, wood cladding going rotten, no insulation to speak of, blown windows, old heating system. The materials did not live up to the design intentions of the early 1970’s. However we liked the footprint and design of the house. It sat in the plot well and we liked the layout. From the entrance in the middle it had the bedroom and bathrooms to the left, the lounge in the middle and the kitchen/utility rooms to the right.
So, plan A was to work with the footings of the bungalow, keep the outside layout with reconfiguration of the inside and add a upstairs master suite. This design has essentially been kept throughout the design process.
We wanted a similar layout to the prior house. Given the two of us and our penchant for working areas the main use will be upstairs master bedroom suite, the lounge, the kitchen and workshops. The house has as much area for garages, workshops as living space. As its the two of us in the house for 95% of the time, the lower floor bedrooms can essentially be shut off.
Mike, the architect dealt well with our strong opinions but still managed to add some elegant architectural features and provide some flair to the design. A huge amount of natural light is provided and open spaces.
Materials
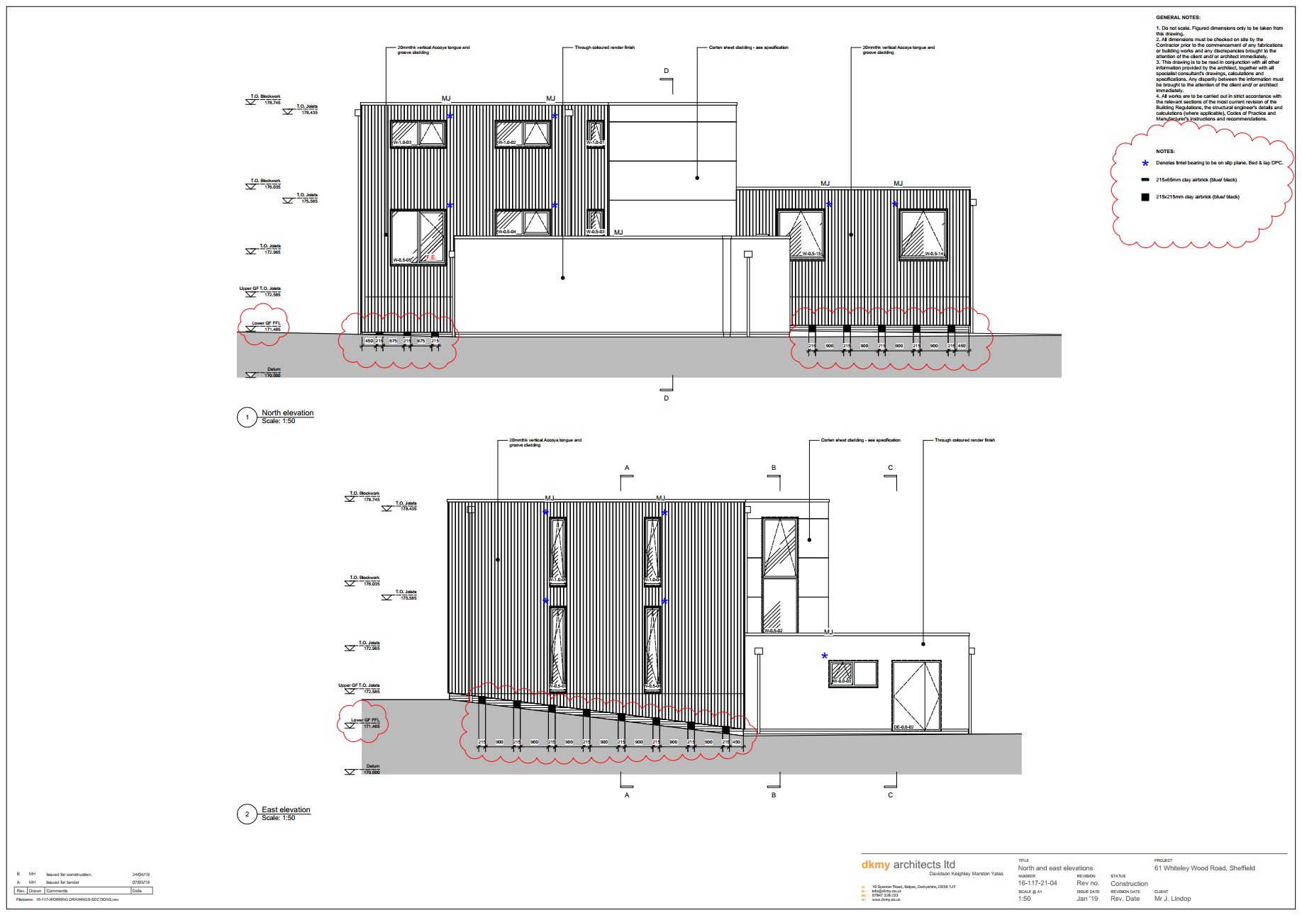
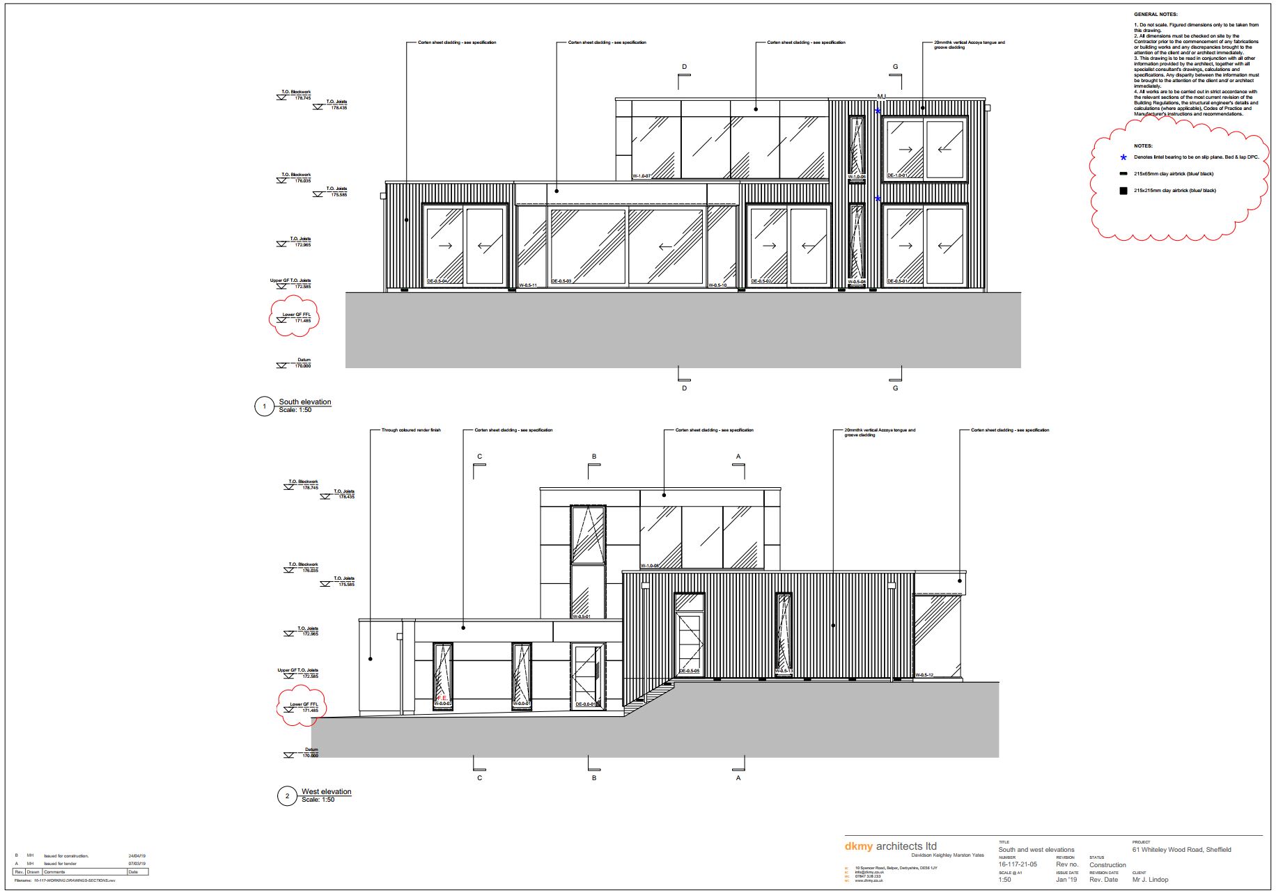
The design is for a contemporary house on the exterior but a warm feel, chalet-style on the interior. The exterior has strong lines, clad in wood (accoya) and corten with the south face predominantly windows. The interior makes extensive use of wood, and Ang’s skills in soft furnishing.
The cladding uses Accoya, a acetylation-modified softwood that is claimed to be the world’s leading long life sustainable wood. It has a natural ageing and long life and some nice detailing should be achieved. We’re big fans of Corten, a steel alloys which forms a stable rust-like appearance after several years exposure to weather. Corten is also a nice homage to the sheffield steel industry ie our hometown. The stairwell is clad in Corten and I’m sure we’ll be making garden planters and other features with it.
There is best part of 130sqm of glass in the house which will be Al-based. We looked at Al-composite wood windows and ultra-thin profiles but were discounted due to lack of benefits and cost.
Where possible we’re sourcing all the materials manufactured in the UK. Partly as we’re Brits, partly materials are local and shorter delivery, and its another eco-thing not shipping things from abroad.
Garage
Given my penchant for faffing a 9m x 7m split-level garage is part of the design. Its sited in the NW corner of the plot and will give ample space for toys and work spaces. Its simple in design, matches the house with render and Corten and is provisioned to install solar PV if we go that way.
The garage is split level, partly as we’re on a sloping site but also the lower 1/3rd is intended for the bikes and as a workshop where I’d like a higher (>3m) ceiling








